La maison des Phénix
Localisation
Brugelette – Hainaut
Client
La maison des Phénix
Timing
2019 – 2023
Surface
3500 m²
Programme
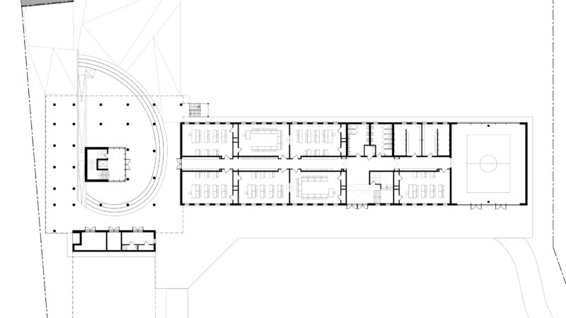
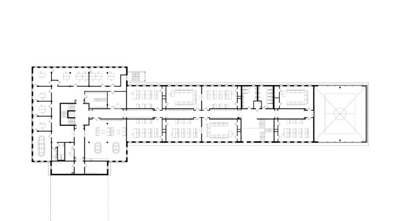
Construction d’une école secondaire
Type
Equipement
Partenaires
UNIT – PLURICITE – TS CONSTRUCT & VALENS – COSEAS
Localisation
Client
Timing
Surface
Programme
Type
Partenaires
Brugelette – Hainaut
La maison des Phénix
2019-2023
3500 m²
Construction d’une école secondaire
Equipement
UNIT – PLURICITE – TS CONSTRUCT & VALENS- COSEAS
La maison des phénix
L’ASBL « École Secondaire Active de Brugelette » veut construire une nouvelle école secondaire sur l’ancien site de la sucrerie de Brugelette.
L’objectif d’intérêt général de lutte contre l’étalement urbain nous a poussé à implanter la nouvelle école, le plus proche possible du centre de Brugelette et permettre ainsi la restructuration d’une partie de l’ancienne sucrerie, en profitant du potentiel de centralité de la commune et ainsi réaménager le site, par le recyclage de la friche.
Un deuxième objectif est aussi de contribuer et de participer au redéploiement économique de la région. Il s’agit en effet d’offrir un cadre plus propice à de nouveaux enseignants, natifs de la région, d’exercer le plus beau métier du monde.
Un troisième objectif est de diminuer les impacts en termes de mobilité. L’école est implantée le plus proche possible de la gare de Brugelette. Par son implantation et par son grand parking à vélos couvert, l’école suscitera l’image d’une nouvelle accessibilité, en vélo, en train.
Notre conception bioclimatique utilise les caractéristiques naturelles du site afin de maximaliser l’efficacité énergétique et le confort du bâtiment. L’école fait dos au nord et est tournée vers le sud. Une végétation sera plantée côté nord afin de protéger l’école des vents les plus froid.
L’ensemble de la construction s’est faite avec des panneaux de CLT, en une seule pièce, portant d’une façade à l’autre, avec deux appuis au niveau des couloirs. Ceci permet un gain de temps lors du montage.




























